Design & Decorate / Home Design The house is full of natural and pure light - Home Design /

The house is full of natural and pure light

The house is full of natural and pure light - Interior Design Ideas

Warm memories together should not only be kept in mind. Fragments of objects in life are also very precious. In this case, the owner of this case is welcoming small babies to be born.

The house is full of natural and pure light - Interior Design Ideas

Considering that the original wardrobe system of the old house is still quite intact, so with the help of the designer, it has taken advantage of the easy relocation and flexible integration. Through dismantling and refreshing the doors, it was reshaped according to the outline of the new home to create new functions. Make a cabinet to bring back warm memories of the family and continue to compose a new story.

The house is full of natural and pure light - Interior Design Ideas

At the same time incorporating the homeowner's desire for life, the right cabinet proportions can maintain an unobstructed and open view. At the same time the dolls in the beloved collection can be perfectly displayed. The entire room is harmoniously dyed with simple and fresh colors, accompanied by dim sunlight. The unrestricted space provides children with a safe and secure development environment.

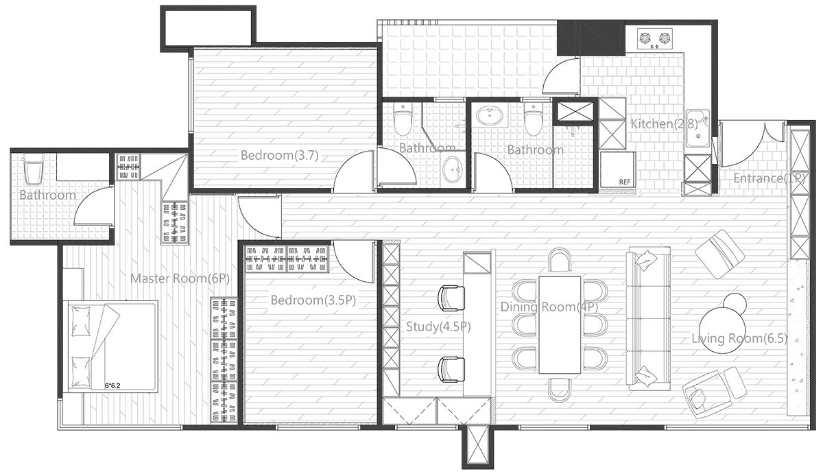
Basic information:

4 bedrooms, 2 living rooms, 3 bathrooms, 2 adults, 2 children

The house is full of natural and pure light - Interior Design Ideas

Need:

1. The couple likes the modern, simple Nordic country style, open air

2. Relocate storage cabinets from your old home to your new home for continued use

3. Homeowners love to collect dolls and clothing, and wall storage is designated for display requirements

1. Corridor design:

Scattered gray hexagonal floor tiles. According to the number of family footwear on the left side, cover a pure white shoe cupboard.

The house is full of natural and pure light - Interior Design Ideas

The middle part of the mining frame is designed for the construction of a Duanjing pavilion. The insides are carefully selected and covered with black stone patterns to make the colorful dolls vividly presented. The opposite wall is covered with large gray mirrors to cleverly shield the transformer box to maintain a clean view. Play the stunning virtual reality effect of the mirror to extend the view across the narrow porch.

The house is full of natural and pure light - Interior Design Ideas

2. Design a dining room:

The owner has two babies, wishes for the children to have a smooth and generous life. So they check their habits and needs, remove the curtains that block them, and open up the scale of bright and airy spaces. In order for parents to immediately respond to the needs of their children, use wooden floors instead to promote a cozy and natural atmosphere.

The house is full of natural and pure light - Interior Design Ideas
The house is full of natural and pure light - Interior Design Ideas

The veranda cabinet further extends to the living room, helping to promote a continuous expansion of visual movement, while at the same time eliminating functional division by area. Replace the theater cabinet door with gray glass, making the digital pendulum look hovering and three-dimensional, while the shape dims the Mask Effect, sweeping away clutter.

The house is full of natural and pure light - Interior Design Ideas

The designer makes the most of the system board for superb flexibility, and spreads the scratch-resistant stone grain system panel to open a platform to eliminate the collision caused by the robot sweep during cleaning and to donate jewelry to collectors. The stable display stand is uniformly painted with a special plaster coating on large surfaces. The delicate hand-trowel method of construction is used to activate the natural three-dimensional texture of the wall under gentle sunlight.

The house is full of natural and pure light - Interior Design Ideas

Since kids are in an active and active phase, design starts with safety. The arc-shaped side table in the center alleviates the worry of impact, and the master seat and indigo blue sofa match the patterned master seat to open up a fresh and stress-free everyday moment. Based on the rhythm of the movement, furniture and beams define invisible boundaries. The restaurant opens next to the living room and is fitted with a chain wash table to match the scene where many people are tasting food.

The house is full of natural and pure light - Interior Design Ideas

3. Design of working room:

Light gray walls are clad in the front, hanging bars for hanging pictures are recessed, allowing homeowners to change the scene of the collection as desired. Meeting the needs of reading and exhibition spaces, wood and pure white are used to construct the letter L. The waist wall not only pulls out the clear boundaries of the study, but is also ingenious. conceal all kinds of living things, maintaining a pure sense of open vision.

The house is full of natural and pure light - Interior Design Ideas

Build a long, transparent cupboard along the wall, convenient for the homeowner to place her favorite collection and overhangs. The shallow floor-to-ceiling wall turns into whiteboards for message notes, transforming interactive phrases into warm scenes, and waist walls replaced with lush grass and green. Also, immediately connect a large white desk and drawer to ensure flexibility enough for children's reading tasks.

The house is full of natural and pure light - Interior Design Ideas
The house is full of natural and pure light - Interior Design Ideas

A raised bench is used by the window to expand the accompanying reading scene. The row of swivel drawers is used to support the table, avoiding the high cabinet and creating a feeling of stuffiness, creating an image of children and parents living slowly and freely, and the rear wall of the book follows. the height of the shutters. Proportionally, the upper layer is equipped with a clear glass door, inside is equipped with a warm wooden base, can see dolls, toys and memories of growing up during the travel. The lower layer is replaced with drawers for everyday necessities, revealing intimate details in white tones.

4. Kitchen design:

Two-storey built-in cabinets are built with pure white blue at the connection between the aisle of the guest and the kitchen. Space configuration is calculated according to types of items, upper floor for spare parts, middle space for wall vacuum cleaner, lower floor of cleaning plan. The robot's exclusive placement doesn't waste an inch of ground effect. At the same time, install the gray and black glass sliding door to make a flexible partition to prevent oil smoke from spilling out during cooking. Select a vivid and pure brick background, install an electric cabinet to meet the actual cooking needs.

The house is full of natural and pure light - Interior Design Ideas
The house is full of natural and pure light - Interior Design Ideas

5. Design master bedroom:

Fresh blue fabric and relaxing sleeping air, to keep breathing space for sight. Do not choose height-compression chandeliers, instead use a spotlight that pulls from the ceiling to the wall, reflected through the carved mirror. To strive for a clear door picture.

The house is full of natural and pure light - Interior Design Ideas
The house is full of natural and pure light - Interior Design Ideas

In fact, the old cabinet system is still stable and perfect, it will continue to be removed, moved to the main bedroom and inserted into the L-shaped wall cabinet without obstructing it. Space required.

The house is full of natural and pure light - Interior Design Ideas
The house is full of natural and pure light - Interior Design Ideas

The main wall of the wardrobe continues to use the old cabinet, drawer and hook hardware. According to current clothing storage and quantity habits, it is integrated and expanded with new cabinets, and replaced with pure white wooden doors, designed with wireframe and elegant brass handles. . The country atmosphere is clear, idyllic, the old and new scenes are formed without contradiction.

The house is full of natural and pure light - Interior Design Ideas

In addition to continuing the warm memories of the old cabinets, we continue to use the old green mattress to create a firm and comfortable support for the body, to create a lip. School relax and sleep well when abundant sunlight poured in from the blinds, the years were calm and peaceful. The atmosphere quietly spread.

The house is full of natural and pure light - Interior Design Ideas

6. Design of children's room:

Incorporate future usage needs into the master plan, considering that young children should eliminate the standard shelf design, maintain the most airy feeling possible, desks and other equipment can be added. supplement to meet growth demand. The pure whiteboard forms a two-story shelf, not only with the upper floor for seasonal bedding and bedding, but also a variety of children's toys and books that are opened for easy access.

The house is full of natural and pure light - Interior Design Ideas

Moving inside, from the point of view of children's vibrant lifestyles, the waist wall is built with an elegant gray fabric imitation system panel that is safe and non-toxic to prevent dirt from normal touching and Subtle contours of the board are used as the bright green focus. Series, from small ingenuity to boosting tunes.

The house is full of natural and pure light - Interior Design Ideas

                                                                                                                                                                                                                          Source: Oude


RELATED ARTICLES

THE BEST HOME FOR YOU

"We collect and recommend beautiful designs, update trends, and share interior tips and tutorials"
Copyright © 2008 - 2026, Designer All rights reserved.
Trang Web đang chạy thử nghiệm
back to top