Design & Decorate / Home Design The house is for pet owners - Home Design /

The house is for pet owners

The house is for pet owners - Interior Design Ideas

Becoming a member of the house is very simple and the space can almost completely show the needs of the owner. The landlord has lived with cats for many years. Therefore, although the space is only 20 square meters, it is difficult to clean. Good people decide not to create an open space, and divide the necessary functional space into six spaces: living room, bedroom, office, dressing room, toilet and kitchen. The space shared with the cat's love is the living room, bedroom and balcony. The bedroom also has a cat door specifically designed for cats to come in and out.

The house is for pet owners - Interior Design Ideas

Therefore, although the space is not large, there are many types of cuts. To make the vision clear, set the color based on green as the spindle, with white and gray, including the selection of building materials in space, and it is also controlled by a certain amount. small fit. And construction materials reduce visual disturbance. In addition, there are plenty of doors, and the deliberate design allows green to give a sense of spatial lines. Corresponding to the lines of the door frame of the room, the number of doors is reversed and visual fragmentation can be created, so that the homeowner's need for living becomes space.

The house is for pet owners - Interior Design Ideas

The core idea of ​​design: The indoor space of 20 m2 is not really large, but because the owner is quite clear about the needs, the space is mostly functional and area. Each space is independent and complete.

The house is for pet owners - Interior Design Ideas

The design focuses on integrating the visual integrity of the regional space, so the overall meaning is thematic. Because the three invisible rooms behind the wall form a super long visual facade, they deliberately keep the height of the lines in space at the same level, and then use the color jump method to control Vivid feeling of spatial vision.

Q: What was the most memorable experience of designing this case?

The owner attaches great importance to neatness and cleanliness and dislikes trouble and chaos, so she knew the area was shared with cats in the first place. There are only living rooms, bedrooms and balconies with no catwalks and cat pits, nor do they have holes or corners.

The house is for pet owners - Interior Design Ideas

Other spaces are normally closed and cats are not allowed to enter or leave. But because the owner loves cats, he placed an exclusive cat box as litter box on the balcony, and the living room window must also be placed with a cat tree so cats can see the scene.

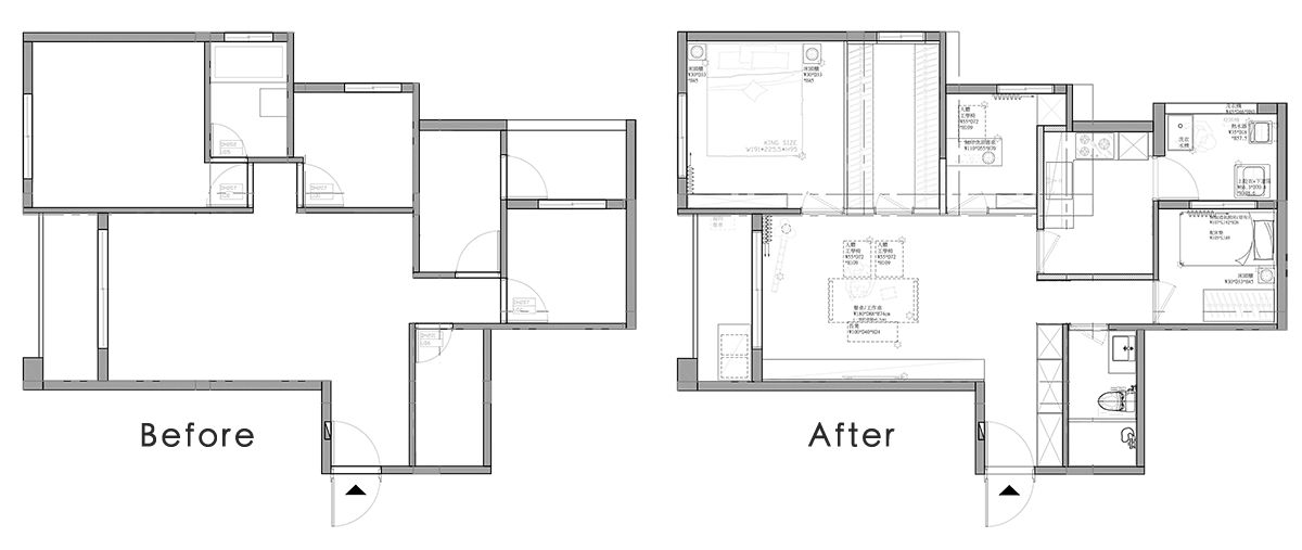
House drawings

The house is for pet owners - Interior Design Ideas

Request:

* do not like to see books and debris, so storage space must be sufficient

* bedroom to put the king size bed, Because you have to sleep with cats

* You can control the cat's range of activity without creating an open space.

The house is for pet owners - Interior Design Ideas

Space

1. Living room design:

Owners do not place sofas, simply: Small coffee tables and cat-related items, so that the cat has enough space to move, and also avoid furniture scratched or damaged by cats.

The house is for pet owners - Interior Design Ideas

The floor is covered with waterproof and abrasion resistant plastic laminate flooring, and the wood pulp is pressed on a board made of stone powder to maintain a warm and durable visual feeling.

The house is for pet owners - Interior Design Ideas

2. Food and kitchen design

Because the landlord is busy with work, he does not often open houses at home, but he still hopes that the kitchen can maintain a certain living function, to serve the landlord who does not like complex character. Sundry, table top is made of stainless steel.

The house is for pet owners - Interior Design Ideas

The kitchen is easily exposed to water and oil stains, so the floor is covered with green hexagonal tiles, easier to clean. Ordinary kitchens may not be equipped with doors, but to meet the needs of the owner, kitchens are also equipped with door panels to keep the kitchen closed.

The house is for pet owners - Interior Design Ideas

3. Main bedroom design

The owner stated that a large double bed should be placed so that she and a cat can sleep together. After calculating the space needed for the bed and aisle, reserve the required number of pings.

The house is for pet owners - Interior Design Ideas
The house is for pet owners - Interior Design Ideas

Because there is an exclusive locker room space, no extra wardrobes in the room, only grid storage cabinets to store small things.

The house is for pet owners - Interior Design Ideas

The door also digs a small door, so cats can enter and exit freely.

The house is for pet owners - Interior Design Ideas

4. Designing changing rooms

The owner uses one of the spaces as an exclusive locker room and does not use wood to place orders. Instead, he measures the size of the closet and buys an open modular shelf with simple, flexible and light lines.

The house is for pet owners - Interior Design Ideas

5. Balcony design

In order for the cat to have ample room to use, the owner is required to place a large curtain-shaped cat litter box placed on the balcony and plan circular holes to allow cats to enter and exit the room, but It is also limited. To protect the cat's safety, the door that actually leads to the balcony is still prohibited.

The house is for pet owners - Interior Design Ideas

6. Bathroom design

Due to the size of each space, the bathroom has shrunk by 3 ~ 5 cm. It uses large area tiles to place walls, then joins white walls and bright light to lighten the bathroom structure and make the space more spacious.

The house is for pet owners - Interior Design Ideas
The house is for pet owners - Interior Design Ideas

Source: facebook.com/goodpersoninteriordesign


RELATED ARTICLES

THE BEST HOME FOR YOU

"We collect and recommend beautiful designs, update trends, and share interior tips and tutorials"
Copyright © 2008 - 2026, Designer All rights reserved.
Trang Web đang chạy thử nghiệm
back to top