Design & Decorate / Home Design Black and white modern style house - Home Design /

Black and white modern style house

Black and white modern style house - Interior Design Ideas

Parents have guided us to grow and grow stronger, but brothers and sisters are supportive companions, facing every stage of life, we learn to spread our wings away from our home, step through the ups and downs and hope that when we look back, we still retain the beauty of brotherhood. In this case, the two brothers decide to own a family and live side by side, so that they can take care of each other and enjoy private lives without disturbing each other.

Black and white modern style house - Interior Design Ideas

Taking into account the potential for future membership growth, and paying special attention to the flexible use and tailor-made features of the system's interiors, I personally discussed it in detail with the designer. For busy homeowners, from home inspections, setting styles, and choosing materials and colors. 3D drawing to communicate technical facilities for train services, greatly reducing the dedicated renovation process, after also being aware of Europe and Germany's non-toxic safe green building materials, already decided to consult Oude furniture chain business contract planning new home construction.

Black and white modern style house - Interior Design Ideas

Faced with the different spatial styles of the two brothers, the designer's designer used the very flexible advantages of the table to make the house ideal for both sides. During the first negotiation, the brother expressed a clear design of the style and immediately reached consensus in the form of hand-drawn manuscripts, depicting the rich life of a rich Nordic home. contact, while the younger brother appreciated the designer's ability to specialize in balancing beauty and functionality. He has full authority to trust the modern layout in black and white to breathe a new atmosphere into the brothers' transformable future!

Black and white modern style house - Interior Design Ideas

Basic Information Case

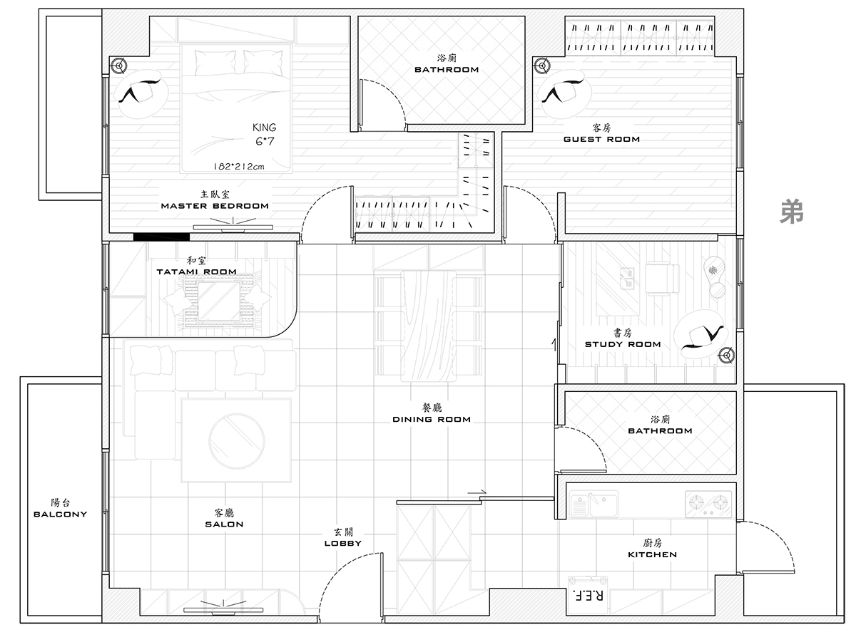
His brothers: 3 bedrooms, 3 bathrooms, 2 adults

Black and white modern style house - Interior Design Ideas

Big brother's house: 2 living rooms, 3 bedrooms, 3 bathrooms, 1 adult

Black and white modern style house - Interior Design Ideas

Need:

* My brother likes the Nordic style and natural wood feel

* My brother thinks about future changes, focusing on empty and refreshing spaces, using the interior system to expand and use in a smart way, to meet the possibility of increased membership in future

* Brother I prefer black and white, the younger brother hopes that the classroom desk can be placed on the desktop.

1. Living room design

Brother's house: The room's cozy ambience is surrounded by warm wooden floors and cabinets. The entire surface of the room is decorated with gray and blue colors to brighten the spatial vision, expand the relationship between public spaces and eliminate redundant planning. Use moderate white space to build generosity and simplicity.

Black and white modern style house - Interior Design Ideas

Wooden coffee table and fabric sofa with iron leg details, and the proper combination of red, brown and gray striped pillows, expressing the aesthetics of personal life.

Black and white modern style house - Interior Design Ideas

Brother's house: The living room uses stone to construct the black and white space, the dark gray crystal ore is used to brace the TV wall, the 0.5 cm thin plate to achieve the wall design does not fall with the defined floor threshold. made of stone imitation brick 120 x 60 cm.

Black and white modern style house - Interior Design Ideas

The designer made good use of the system board to give the cabinet a higher usability. White television cabinets combine wooden cabinets and feet to increase load capacity, while expanding the scale to make a locker that can be worn. In addition, in terms of the smoothness when moving from the door to the living room, the TV cabinet is designed to direct the view through the beveled design to avoid collision, and at the same time place the sweeping robot on the sides.

Black and white modern style house - Interior Design Ideas

To solve the problem that the sofa without walls would recede, while avoiding unnecessary compartments, the designer raised the wooden floor to limit the movement of the sofa and expanded it into a room Japanese style.

Black and white modern style house - Interior Design Ideas

A bench with storage function is arranged under the daylight window to open a rest space that can sunbathe, the wall uses black blue and irregular white cabinets to make display cabinets both aesthetic and practical.

Black and white modern style house - Interior Design Ideas

2. Design the kitchen

Brother's house: through integrated wood-grain glass cabinets, integrated into the cooking yard from the entrance, the L-shaped bar expands the kitchen space, meeting the versatile arrangement of homeowners to make coffee, roast or other Simple meal, gray-green change. Hexagonal tiles are used to collage floors, and the misty blue walls are partially adorned, adding a soft and lively Nordic atmosphere.

Black and white modern style house - Interior Design Ideas

After retiring, the manufacturer's attached flat-shaped kitchenware was changed to a two-row kitchen layout, incorporated into the Oude system control panel. The electric pull-out desk is tailor-made and stores kitchen utensils, matching and matching dark wood bottom cabinets and off-white wood grain top cabinets, featuring pressure-relieving toning shades for cabinets.

Black and white modern style house - Interior Design Ideas

Since the male owner is responsible for cleaning the dishes at home, the height of the sink is increased with the height of the male owner, the cooking area is planned according to the height of the female host. The clean and durable Cyrel stone is chosen for the kitchen cover and Nakajima base.

Black and white modern style house - Interior Design Ideas

3. Design of the cafeteria

Brother's house: Continue the visual movement of the kitchen bar, and order original wooden dining tables and benches that homeowners love. The simple texture of the wooden blocks matches the Nordic interior style. A dining chandeliers with rounded lines are used to create a comfortable dining space.

Black and white modern style house - Interior Design Ideas

One side is designed with fake barn doors and iron perspective sliding doors, bringing out the rudimentary and simple element of lightness, adding industrial style to the soft and warm Nordic atmosphere.

Black and white modern style house - Interior Design Ideas

His house: Take on a cabinet with a black and white display in a Japanese room, connect the cabinets of the same color to define the restaurant area, consider the extension of the retractable dining table, close the side cabinet to avoid impact. to aisle.

Black and white modern style house - Interior Design Ideas

The sliding door system and lower cabinet are designed synchronously to bring the smoothness of use, the upper floor has an electric pedestal to help homeowners easily make a light breakfast without going to the kitchen.

Black and white modern style house - Interior Design Ideas

4. Multi-function room design

His house: The office is equipped with an iron perspective sliding door to create flexibility in interacting with open spaces. The cabinet is planned to be a large collection of city cups and archives, open bookcases are not easy to clean, so the perspective is. The cabinet is housed with collections and books, while the other side is used to hold large objects, the remaining space creates a yoga space for the homeowner to relax.

Black and white modern style house - Interior Design Ideas

The brother's house: Open the iron perspective sliding door connecting the public space. Office outside black and white layout. Gray linen pattern and white system panel are used to add a more comfortable ambience. A partial opening, closing and combination of storage tiers, shelves. Use rounded corners to outline sharp space characters.

Black and white modern style house - Interior Design Ideas

For desk and electrical space, the L-shaped desk is beveled 60 cm deep, with an exit hole to maintain a refreshed table top, under the host computer base.

Black and white modern style house - Interior Design Ideas

5. Design the master bedroom

Brother's house: The wall of the bedroom is made of more stable gray-blue colors, along with wooden furniture and floors, to set up the sleeping and relaxing environment of the whole room. Based on doubts about the original layout of the pressurized bed, one roll out according to the depth of the roof beam. On the waist wall, the raised wood system panel expands headboard storage functionality.

Black and white modern style house - Interior Design Ideas

Makeup space integrates wood for vertical cabinets to increase storage capacity, designers do not remove every inch of the usable area, open mesh cabinets retain uneven corners and warehouses, connect dressing tables to create so a space of harmony and depth.

Black and white modern style house - Interior Design Ideas

Brother's house: To improve the layout of the door facing the bedroom, the designer used hidden doors and connected display cabinets to create the illusion of a wall to separate public and private areas. The interior doors are glued with classic crystal ore plates that create TV walls to connect the Japanese room and the dining room cabinets. Create a wall in the style of mixed stone texture and black and white geometry.

Black and white modern style house - Interior Design Ideas

The bedroom is distinct from the cold tones of the open space, wooden floors are used to spread a bright and comfortable atmosphere, the walls are partially decorated with a gentle blue color. A bedside table is used to deeply address feng-shui concerns. The flexibility of the cabinet system is adopted, with drawers and display cabinets. Storage cabinets meet many different needs.

Black and white modern style house - Interior Design Ideas

To maintain a smooth flow after entering the door, a beveled open cabinet is designed at the corner to remove the weight of the cabinet and use it as a hanging area for coats and hats. At the same time, in terms of the L-shaped angular distortion space, special installation is possible. A doorway with an angle of 165 degrees brings an unobstructed view of the homeowner's outfit selection.

Black and white modern style house - Interior Design Ideas

                                                                                                                                                                                                                         Source: Oude


RELATED ARTICLES

THE BEST HOME FOR YOU

"We collect and recommend beautiful designs, update trends, and share interior tips and tutorials"
Copyright © 2008 - 2026, Designer All rights reserved.
Trang Web đang chạy thử nghiệm
back to top